3D Laser Scanning at Historic M. Ranch

3D Laser Scanning at Historic M Ranch

Discover how As-Built World delivered accurate as-built documentation via 3D laser scanning for a stunning 1919 Napa estate renovation, including its unique indoor spa and pool house updates.

In the rolling hills of Napa Valley, where world-class vineyards meet timeless architecture, historic properties demand respect—and precision. Recently, As-Built World had the privilege of partnering on one such gem: the historic M Ranch.

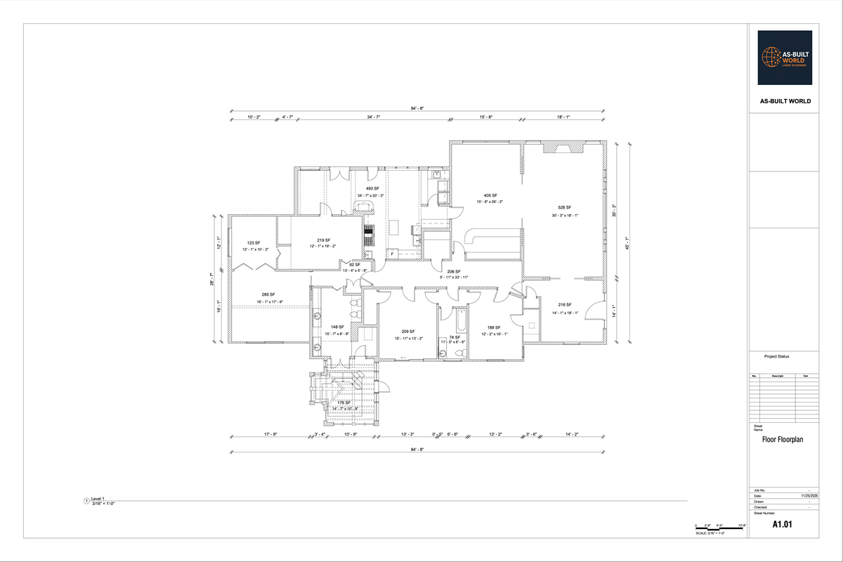
This 11.36-acre estate, originally designed in 1919 by renowned architect Luther Turton, features a charming 4,000+ sq ft main residence surrounded by vineyards and natural beauty. With its classic craftsmanship, spacious living areas, stone fireplace, and one-of-a-kind indoor spa integrated directly into the master suite, the property blends old-world elegance with modern potential.

 

The Challenge: Capturing a Heritage Property for Modern Renovation

 

Renovating or updating a century-old home comes with unique hurdles. Original drawings may be incomplete or nonexistent, walls and floors hide surprises, and every inch matters to preserve character while accommodating contemporary needs. For the team here, the goal was clear: provide the architect with reliable, high-accuracy measurements and documentation to inform design decisions, minimize site revisits, reduce change orders, and keep the project on track.

That’s where 3D laser scanning shines. Unlike traditional manual measuring, our process captures millions of precise data points in minutes, creating a comprehensive digital twin of the existing conditions.

Our Work On Site

We scanned both the main house and the pool house, focusing on key areas:

Using the Matterport Pro3, we generated:

Why 3D Laser Scanning Made the Difference

For historic and complex properties like this one, precision isn’t optional—it’s essential. Benefits
we delivered include:

This project exemplifies how laser scanning bridges the gap between past and future, especially in Napa Valley’s rich architectural landscape.

Ready to Bring Clarity to Your Next Project?

Whether you’re tackling a historic renovation, commercial retrofit, multi-family update, or industrial site, accurate as-built documentation is the foundation of success. At As-Built World, we specialize in nationwide 3D laser scanning solutions that turn real-world structures into reliable digital assets.

Project Details

  • Client Name : M Ranch
  • Handover : January 2, 2024

Contact Info

  • Nation-Wide
  • info@asbuiltworld.com
  • (510) 606-4824
  • Mon - Fri: 9:00 - 6:00